作者介紹:
空中造樓機制造總承包商
北京北起意歐替起重機有限公司
董事長 孫誠
一、標準化設計、模塊化組合
(一)標準化設計
1.基本組成
1)建筑功能模塊。
2)門窗洞口模塊。
3)墻、梁、樓板留孔留洞模塊。
4)內模板模架模塊。
5)外模板模架模塊。
6)墻、梁混凝土現澆操作走道模塊。
7)模架下部自動噴霧裝置模塊。
8)剪力墻鋼網與分戶預制輕質填充墻模塊。
9)100厚預制輕質隔墻模塊。
10)鋼筋桁架樓承板模塊。
11)預制鋼梯與預制鋼梯混凝土踏板。
12)給排水管線模塊。
13)采暖管線模塊。
14)強電模塊。
15)通訊模塊。
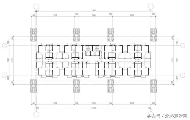
2.按面積系列建立“政府保障房”標準化戶型與核心筒。(圖1)
3.按面積系列建立開發商主導的“普通商品房”標準化戶型與核心筒。(圖2)
4.按標準化戶型、標準化核心筒,建立15項模塊化施工圖圖庫。(圖3)
(二)模塊化組合
1.按照建立的標準化戶型與核心筒打造標準化系列產品。(圖4,圖5)

2.標準化戶型與核心筒,模塊化組合建立標準化、系列化住宅產品全套施工圖儲備庫。(圖6、圖7)

3.利用陽臺、外窗、空調板、裝飾線條、色彩變化等要素,構建標準化外立面套餐。
二、“空中造樓機”建造與標準化產品設計相配套
(一)“空中造樓機”傳動升降機組配置與住宅標準化產品形體相對應。
1.一字型平面示意
2.凹型平面示意
3.T型平面示意
4.十字型平面示意
5.二棟十字型組合示意
6.回字型平面組合示意
(二)根據傳動機組的布置,配套鋼結構平臺、外模水平支撐、電動雙梁行車托架與軌道、樓面混凝土操作平臺、水平穩定支撐布置圖。
(三)根據標準化戶型與核心筒配套內模與外模。
(四)應用BIM技術指導空中造樓機組裝、運行與回落轉場,編制施工指南。
北起意歐替市場宣傳部
掃描二維碼關注北起意歐替公司官方公號
版權聲明:
本平臺的文章目前全部為原創,版權屬于北起意歐替的原作者。我們歡迎閱讀和轉載,但必須注明轉自公眾號“北起意歐替”并明示編輯寫作團隊,否則將按慣例追責。


